Adresse
Rue des Orchidées, 15
5600 MERLEMONT
Détails
Maison 2CH, grenier, magnifique jardin
Prix
225000 €
Interessé(e) ?
EN QUELQUES MOTS
VENDUE Située en pleine campagne, pour les amoureux de tranquillité, maison d'habitation proposant 102m² habitables pour un total de 250m², le tout sur un terrain de 12 ares 40ca. Le bien se compose d'un hall d'entrée avec wc, d'un séjour, d'une cuisine meublée et équipée en électroménagers, d'une véranda, d'une salle de douche et d'un espace buanderie au rez-de-chaussée, A l'étage, deux grandes chambres. Sous toiture, un grenier de rangement. En sous-sol, une cave. D'un point de vue technique, châssis équipés d'un double vitrage, cc gaz à condensation, toiture isolée, installation électrique aux normes RGIE. Vous cherchez un havre de paix, cette maison est faite pour vous!
General
| Type de bien | Maison 2CH, grenier, magnifique jardin |
| Année de construction | 1920 |
| Superficie habitable | 165 m² |
| Superficie totale | 250 m² |
| Superficie terrain | 1240 m² |
| Nombre de chambres | 2 |
| Salle de douche | 1 |
| Cave | 1 |
Données financières
| Prix | 225000 € |
| Revenu cadastral de base | 382 € |
Caractéristiques techniques
| Type de construction | 4 façades |
| Système de chauffage | C.C. au gaz |
informations légales
| Performance énergétique | 491 kWh/m2/an |
| PEB | ![]() |
| Numéro PEB | 20231011026851 |
| Installation électrique | Oui, conforme RGIE |
Composition
| Rez-de-chaussée | |
| Hall d'entrée | 4.76 m² |
| Living | 21.6 m² |
| Cuisine équipée | 21.6 m² |
| Salle de douche | 4.44 m² |
| Veranda | 17.1 m² |
| Buanderie | 12.1 m² |
| WC | 1.5 m² |
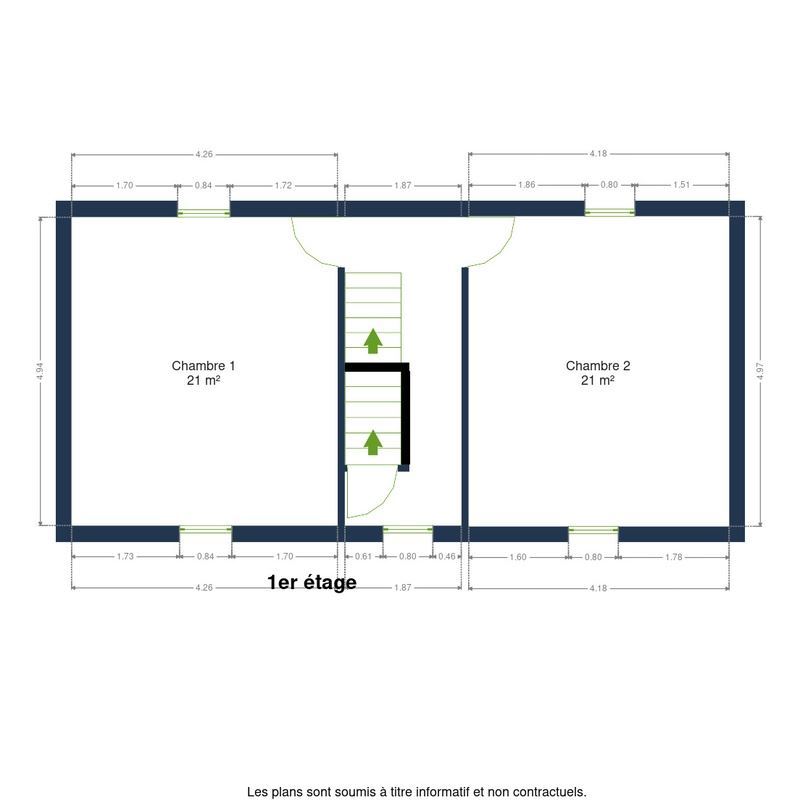
| Premier étage | |
| Hall de nuit | 6.11 m² |
| Chambre 1 | 20.7 m² |
| Chambre 2 | 21.15 m² |
| Grenier | |
| Grenier de rangement | 54.25 m² |
| Cave(-1) | |
| Cave | 31.45 m² |




















