Adresse
7190 MARCHE-LEZ-ECAUSSINNES
Détails
IDEALEMENT SITUE COMMERCE AVEC HABITATION !
Prix
275000 €
Interessé(e) ?
EN QUELQUES MOTS
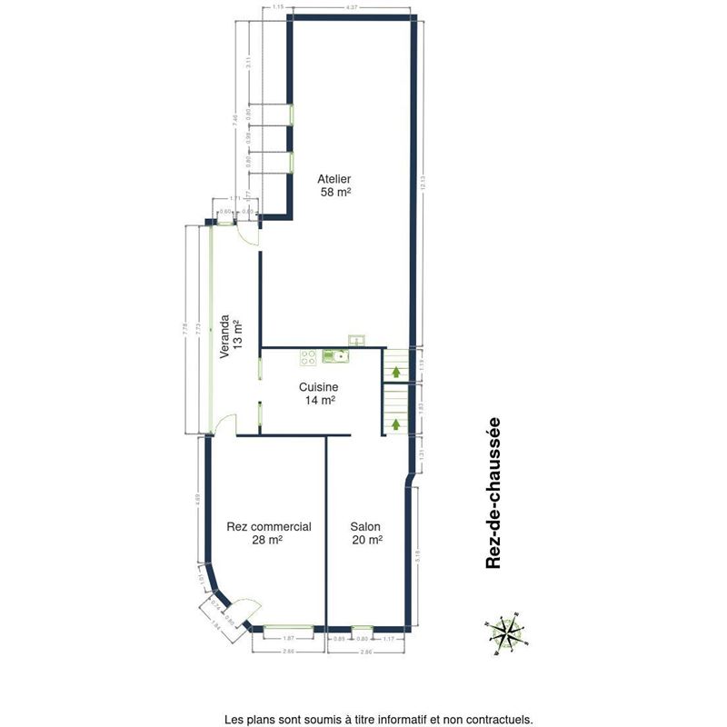
Vous êtes à la recherche d'une surface pour votre activité professionnelle avec un spacieux logement ? Immo CHL vous propose cette bâtisse 3 façades idéalement située avec surface professionnelle de +/- 28m² , un atelier de +/- 67m², véranda, cuisine équipée de +/- 14m² et salle à manger de +/- 21m². A l'étage : large palier desservant sur une salle de douche de +/- 6m², un living de +/- 28m², espace bureau de +/- 12m², buanderie, toilette, 4 chambres (+/- 11m², +/- 11m², +/- 13m² et +/- 15m²). 2ème étage : palier, chambre de +/- 26m² et un grand grenier aménageable de +/- 54m². Sous-sol : caves de +/- 80m². Données techniques : Compteur bi horaire. Raccordement égout. Châssis pvc double vitrage. RC: 922€. Servitude de passage pour le passage latéral. Certificat électrique non conforme. Peb F483kWh/m².an.20251223011087. Système d'offres. Libre à l'acte. Contact: 0488/808.820.
General
| Type de bien | IDEALEMENT SITUE COMMERCE AVEC HABITATION ! |
| Superficie habitable | 160 m² |
| Superficie terrain | 290 m² |
| Superficie living | 30 m² |
| Nombre de chambres | 5 |
| Salle de bains | 1 |
| Cave | 1 |
Données financières
| Prix | 275000 € |
| Revenu cadastral de base | 922 € |
Caractéristiques techniques
| Type de construction | 3 façades |
| Système de chauffage | ? |
| Egouttage | 1 |
informations légales
| Performance énergétique | 483 kWh/m2/an |
| PEB | ![]() |
| Émission de CO2 | 115 Kg CO2/an |
| Numéro PEB | 20251223011087 |
| Installation électrique | Oui, non-conforme RGIE |
| Citerne à mazout | Non Kg CO2/an |
| Électricité | 1 |
| Mazout | 1 |
Composition
| Rez-de-chaussée | |
| Espace commercial | 28.15 m² |
| Atelier | 66.79 m² |
| Veranda | 13.97 m² |
| Cuisine | 13.6 m² |
| Salle à manger | 21.23 m² |
| Premier étage | |
| hall de distribution | 7.84 m² |
| Salle de douche | 6.26 m² |
| Living | 27.79 m² |
| Bureau | 11.79 m² |
| Buanderie | 7.1 m² |
| Hall de distribution | 10.45 m² |
| WC | 2.81 m² |
| Chambre 1 | 11.2 m² |
| Chambre 2 | 10.5 m² |
| Chambre 3 | 12.6 m² |
| Chambre 4 | 14.84 m² |
| Deuxième étage | |
| Hall de distribution | 14.06 m² |
| Chambre 5 | 25.97 m² |
| grenier amenageable | 53.64 m² |
| Cave(-1) | |
| 78.66 m² | |






























